wettbewerb Evangelische Johanneskirche Langenfeld
1. Preis
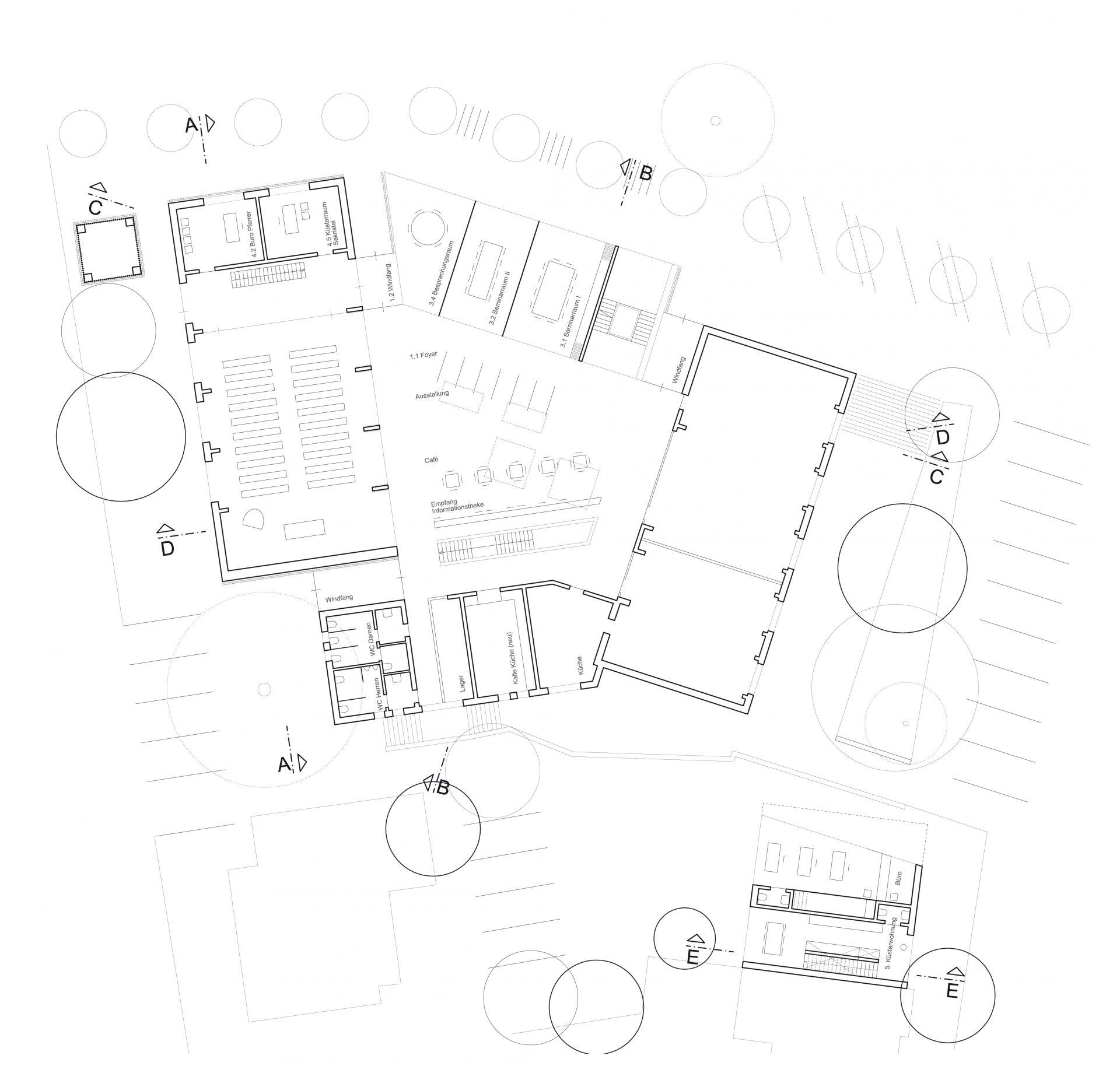
DAS GEMEINDEZENTRUM IM STADTRAUM
Aus dem angestrebten Ersatzneubau für das ehemalige Kindergartengebäude, der Johanneskirche und dem bestehenden Gemeindezentrum soll ein Gebäudekomplex entstehen, der in seiner Gesamtheit in den Stadtraum hinein wirkt. Die Zufahrten und Eingangssituationen auf das Grundstück sollen neu formuliert werden.
Die Wirkung des Gemeindezentrums in den Stadtraum hinein wird bekräftigt, indem die Verbindung zwischen Stettiner Straße und Dietrich-Bonhoeffer-Straße als eindeutig dem Gemeindezentrum zugehöriger Bereich neu definiert, gestaltet und aufgewertet wird und damit Attraktivität und Aufenthaltsqualität schafft. Eine neue Baumreihe transportiert diese Botschaft auf den ersten Blick in die Öffentlichkeit.
Das Erdgeschoss des Ersatzneubaus wird völlig transparent gestaltet und mit verschiedenen öffentlichen Funktionen belegt, um das neu geschaffene zentrale Foyer mit der Wegeverbindung als öffentlichem Ort zu verknüpfen. Foyer und Wegeverbindung bilden so einen gemeinsamen Raum und stärken sich wechselseitig in ihren Verweilqualitäten.
Wettbewerbsinfos
AUSLOBER: Evangelische Kirchengemeinde Langenfeld
PLANUNGSPARTNER: KASTNER PICHLER Architekten
Jahr: 2012
ähnliche Wettbewerbe
Stadtteilzentrum Rodgau Nieder-Roden
2. Preis
Studio GrünGrau Düsseldorf
"Blaue Blume" Meerbusch
1. Preis
Studio GrünGrau DresdenStudio GrünGrau Düsseldorf
Neue Ortsmitte Ottendorf-Okrilla
1. preis
Studio GrünGrau DüsseldorfStudio GrünGrau Dresden
Twins in the Park Düsseldorf
1. Preis
Studio GrünGrau Düsseldorf