Info ausblenden
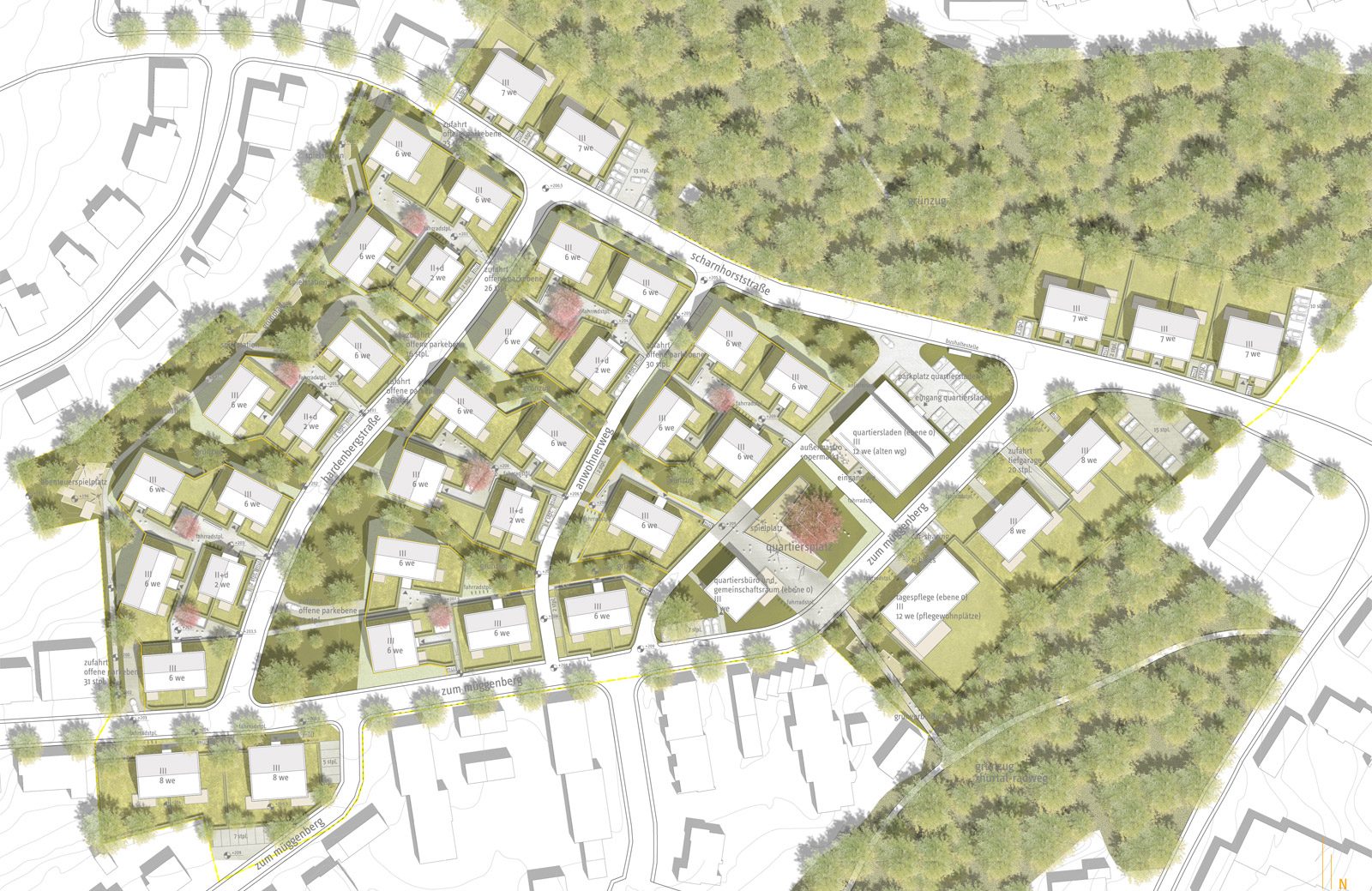
Die Arnsberger Wohnungsbaugenossenschaft (AWG) hat im Mai 2018 ihr großes Bauprojekt am Neheimer Müggenberg gestartet. In sechs Bauabschnitten werden in den nächsten zehn Jahren insgesamt etwa 250 neue Wohnungen entstehen.
Zum ersten Bauabschnitt gehören insgesamt sieben Mehrfamilienhäuser mit 54 Wohnungen, von denen 16 öffentlich gefördert wurden. Die neuen Wohnungen entstehen in einem Karree zwischen Scharnhorststraße im Norden, der Straße „Zum Müggenberg“ im Süden und Hardenbergstraße im Westen.
Durch die Gruppierung einzelner Mehrfamilienhäuser um einen freien Platz herum entstehen die sogenannten „Wohnhöfe“, die kleine neue Nachbarschaften erzeugen und das soziale Miteinander fördern sollen.
Auszeichnung: 1. Preis Landeswettbewerb Nordrhein-Westfalen 2013 – Generationsgerechte Quartiersentwicklung in Arnsberg – Neheim
AUFTRAGGEBER: AWG, Arnsberger Wohnungsbaugenossenschaft eG
ARCHITEKT: Konrath und wennemar architekten ingenieure, Düsseldorf
PLANUNGSZEIT: ab 2013
BAUZEIT: ab 2017
BEARBEITUNGSFLÄCHE: Baufeld 1 – 6
UNSERE LEISTUNGEN: LPh 1 – 5

