Info ausblenden
Auf dem Gelände des ehemaligen Rewe-Lagers an der Gerresheimer Landstraße in Unterbach entsteht das neue Quartier „Wohnen im Hochfeld“. Insgesamt sind 360 Wohneinheiten geplant, neben Miet- und Eigentumswohnungen wird es auch Stadthäuser geben. Außerdem sollen auf dem 55.000 Quadratmeter großen Grundstück eine fünfgruppige Kita sowie kleinere Gewerbeeinheiten entstehen.
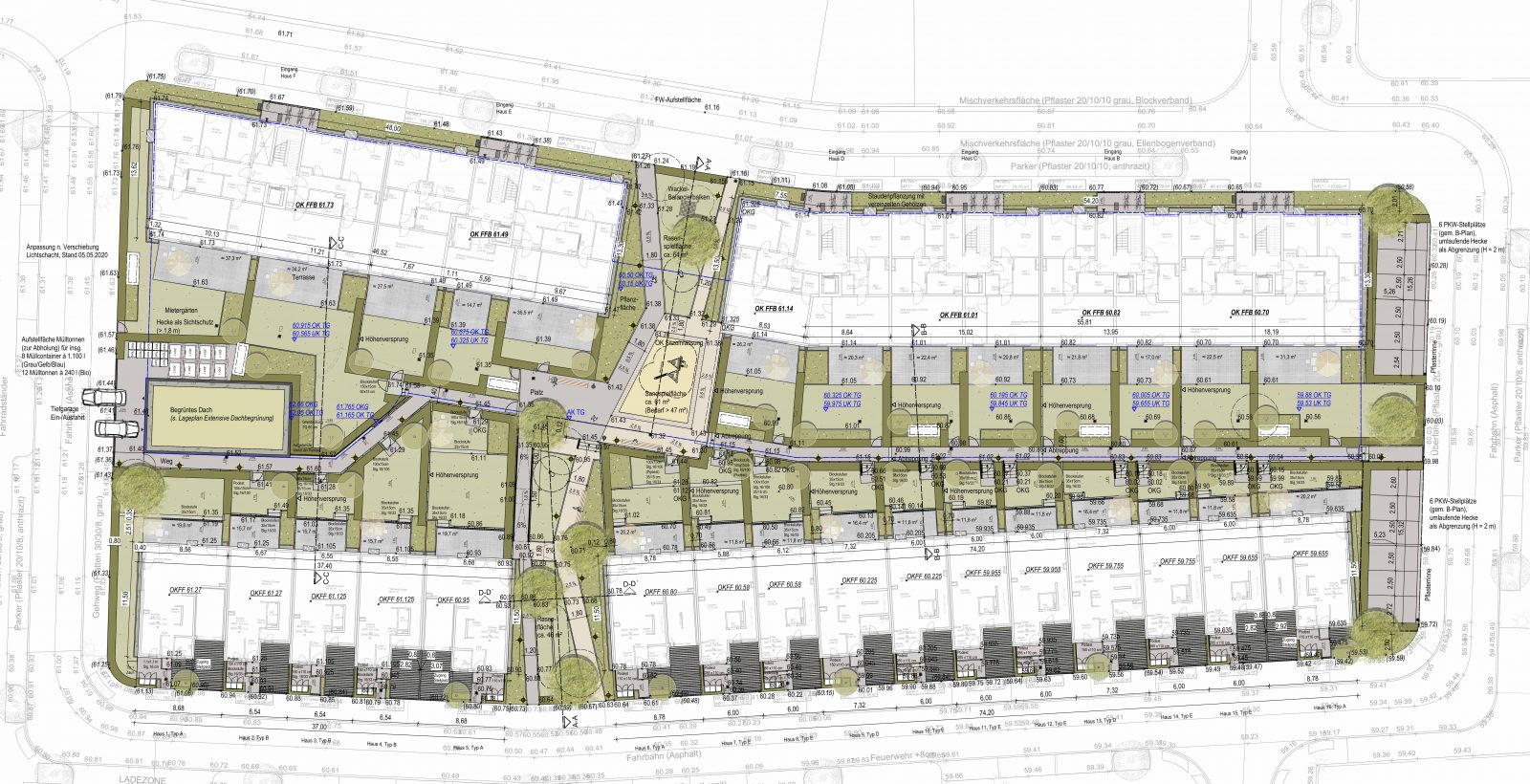
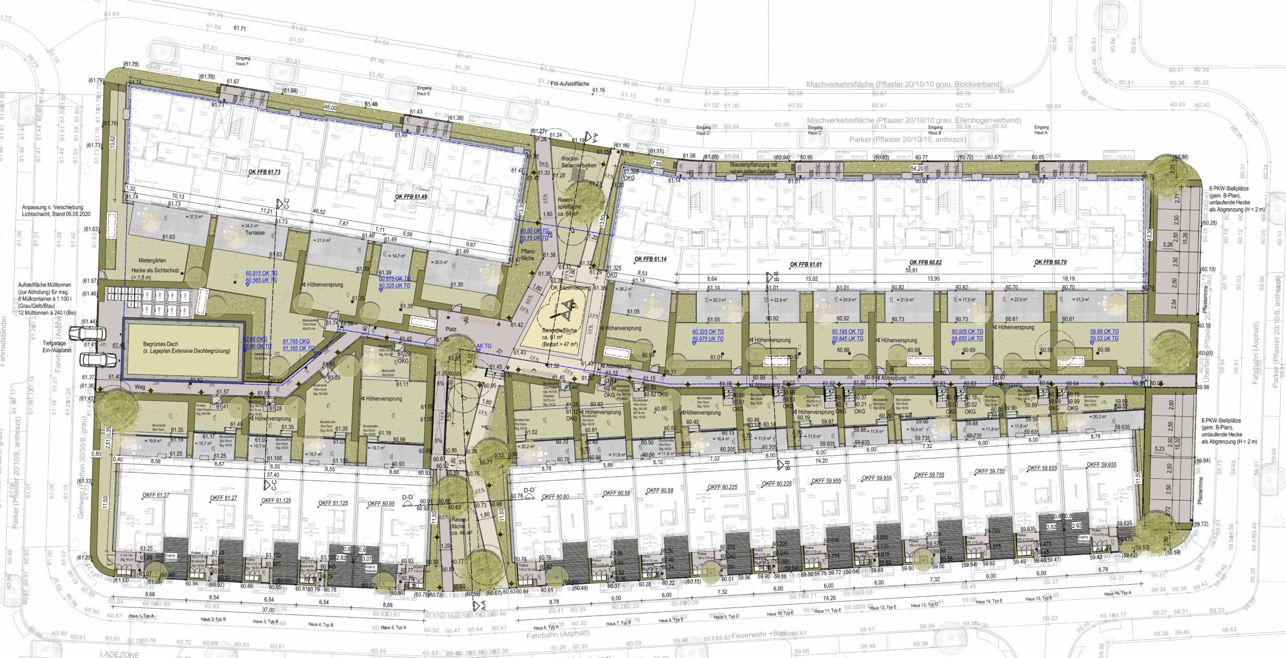
Freiraumplanung
In Anlehnung an das Unterprojekt Gerresheimer Landstraße 71-75 wird die fußläufige Nord-Süd-Verbindung durch die Anordnung der Haupt- und Nebenwege sowie der Rasen-, Spiel- und Pflanzflächen betont. Diese Aufenthaltsflächen werden durch die eingegrünten privaten Mietergärten eingegrenzt.
Das Wohngebiet WA 3.1 (Geschosswohnungsbau) ist mit einer Tiefgarage unterbaut. Auf der wurzelfest abgedichteten Garagendecke sowie auf den Dachflächen entstehen Vegetationsflächen mit einer extensiven Dachbegrünung. Um die Tiefgaragenrampe werden eine Hecke und höhere Stauden und Gehölze gepflanzt. Die Wege-, Spiel- und und Erschließungsflächen werden mit unterschiedlichen Materialien befestigt.
Die Gärten des Geschosswohnungsbaus und der Reihenhäuser werden mit Hainbuchenhecken und abschließbaren Toren abgegrenzt. Pflanzbeete und die Pflanzung von kleinen Gehölzen runden das Bild ab.
Die Nordgärten der Reihenhäuser werden terrassiert ausgebildet. Die am Haus gelegenen Terrassen werden ebenfalls von Pflanzbeeten und einer Winkelstützwand eingegrenzt. Auf den Rasenflächen der Häuser 2-4, 7-8, 10-12 und 14-15 ist die Pflanzung von Bäumen vorgesehen, ebenso wie in den Staudenflächen der Häuser 1,5, 6, 9, 13 und 16. Die Vorgärten der Reihenhäuser werden von einer Rankbepflanzung und Staudenbeeten eingerahmt. Entlang der Fassaden (WA 3.1 – 2.1/2.2) werden weitere Pflanzflächen mit Stauden und Gräsern und vereinzelten Großsträuchern angelegt. Auch die PKW-Stellplätze werden von einer zwei Meter hohen Hecke eingerahmt.
Innerhalb des Plangebietes sind verschiedene Baumneupflanzungen geplant. Im Bereich des WA 3.1 werden insgesamt fünf mittel- bis großkronige Laubbäume gepflanzt. Die Pflanzung verschiedener standortgerechter Bäume, wie z. B. Felsenbirne, Lederhülsenbaum, Amberbaum, Platane und Linde in Sorten, erzeugt attraktive Aspekte in den unterschiedlichen Jahreszeiten.
Innerhalb des neuen Wohnquartiers entstehen insgesamt 235 m² private Spielflächen, davon mind. 47 m² als Sandspielfläche. Innerhalb des Wohninnenhofes, in dem die privaten Spielflächen künftig platziert werden, können ca. 176 m² errichtet werden. Darüber hinaus bieten sich die angrenzenden Wegeflächen als Aufenthalts- und bespielbarer Freiraum (ca. 123 m²) an. Die Sandspielfläche ist mit einer Sitzkante aus Holz eingefasst und einem Sandspielpodest ausgestattet. Auf den Rasenflächen sind weitere Spielgeräte (Wipptiere, Balancier-Balken sowie ein Schwebe- und Verweilnetz) verteilt. Zum Einsatz kommen naturbelassene Spielgeräte mit überwiegend runden Hölzern und einer rauen Oberfläche.
Sämtliche Einbauten wie Bänke, Papierkörbe und Leuchten werden in einem einheitlichen Gestaltungskanon gehalten, welcher sowohl den funktionalen Erfordernissen Rechnung trägt, als auch mit der Architektur harmonisiert. (Visualisierungen Instone Real Estate Development GmbH)
Pressemitteilung Instone, 23.1.2020
Artikel in der RP vom 29.1.2020
Ähnliche Projekte: Wohnen im Hochfeld l Haus 1 Kita
AUFTRAGGEBER: Instone Real Estate Development GmbH
ARCHITEKTEN: pinkarchitektur GmbH & Co.KG, Düsseldorf,
HGMB Architekten GmbH, Düsseldorf
PLANUNGSZEIT: ab 2019
BEARBEITUNGSFLÄCHE: ca. 5.685 m²
GESAMTKOSTEN: ca. 800.000 EUR
UNSERE LEISTUNGEN: LPh 1-5


