St. Anna
St. Anna

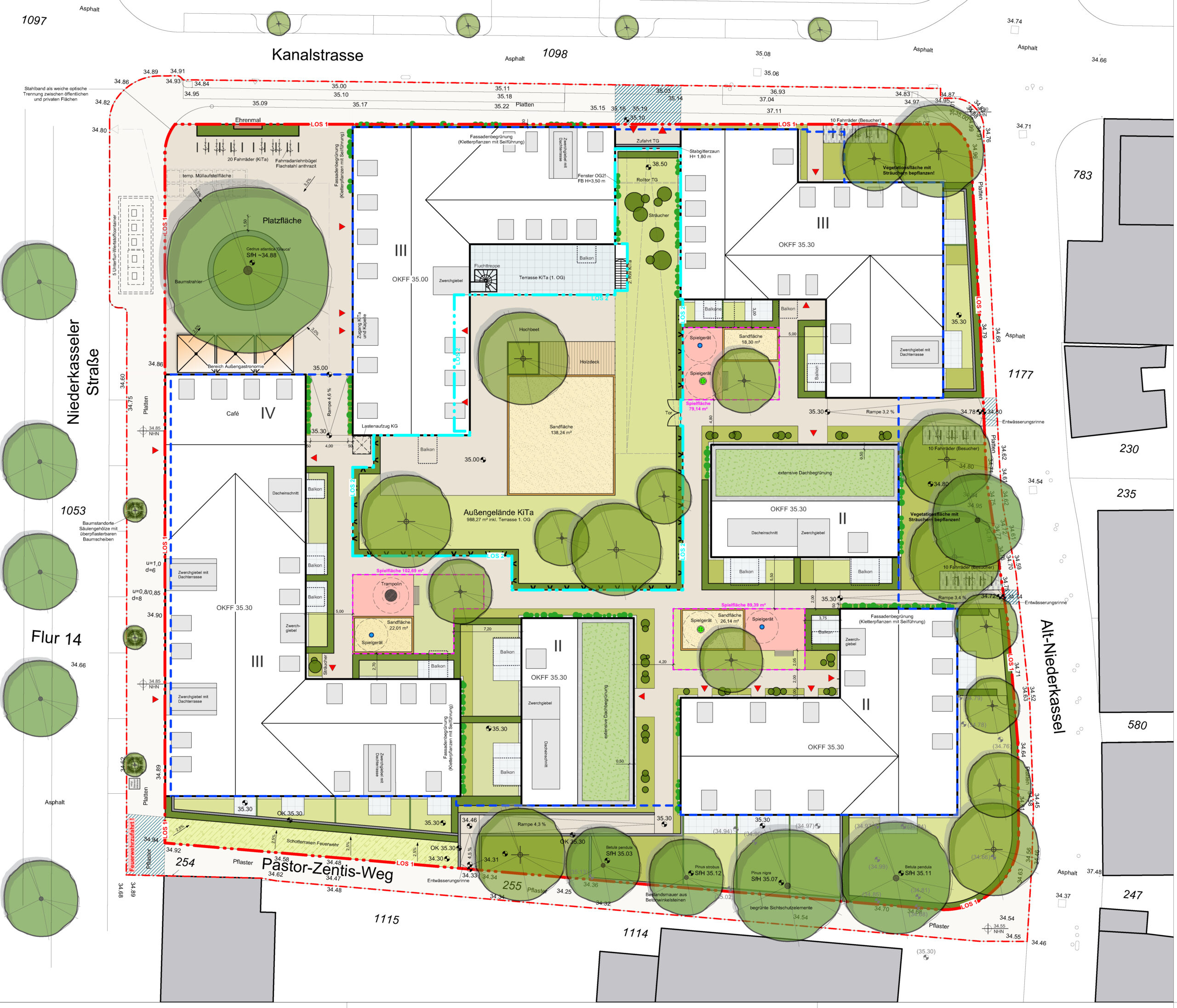
Das Planungsgebiet befindet sich im Westen der Landeshauptstadt, im linksrheinisch gelegenen Stadtteil Düsseldorf-Niederkassel, wenige Gehminuten vom Rhein und den  Rheinauen entfernt. Bei dem Baugrundstück handelt es sich um ein ehemaliges Kirchengrundstück, das sich in die umgebende urbane Siedlungsstruktur einfügt, welche vorrangig durch Wohnbebauung geprägt ist.


Der von Gebäuden umsäumte Innenbereich des Grundstückes wird durch ein Wegenetz erschlossen, welches eine fußläufige Durchquerung des Quartiers in alle Richtungen ermöglicht. Alle Zugänge sind barrierefrei ausgebaut und somit auch durch Rollstuhlfahrer und sonstige geheingeschränkte Personen problemlos nutzbar. Stufenanlagen sind an keiner Stelle in den Außenanlagen vorgesehen.


Der Hauptzugang zur Kindertagesstätte sowie die Zugänge zur Kapelle und zur geplanten Gastronomieeinheit, befinden sich alle direkt an der geplanten Platzfläche Ecke Niederkasseler Straße/Kanalstraße und sind über diese erschlossen. Auf dem Baugrundstück sind sowohl Pkw- als auch Fahrradstellplätze geplant. Die Stellplätze für den KFZ-Verkehr befinden sich alle in der Tiefgarage, die Stellplätze für die KiTa befinden sich auf der öffentlichen Platzfläche unweit des Hauptzuganges.


Alle Wege und Platzflächen im Quartier werden mit einem Pflasterbelag aus Betonstein ausgestattet. Die Terrassen in den Mietergärten sollen mit großformatigen Terrassenplatten, ebenfalls aus Betonstein, belegt werden. Für die Fahrradstellplätze der Anwohner*innen ist ein Belag aus versickerungsfähigem, optisch ansprechendem Rasenfugenpflaster. Im Bereich der Spielplätze sind zudem Flächen mit einem EPDM-Fallschutzbelag vorgesehen.


Im Bereich der drei kleinen Spielflächen sind jeweils zwei Kleinspielgeräte bzw. Punktspielgeräte angedacht. Zudem wird es auf jedem der drei Spielplätze eine Sitzgelegenheit in Form einer Bank oder eines Betonelementes mit hölzerner Sitzauflage oder bunten Sitzschalen geben. Die Sandspielflächen sollen mit Holzbohlen eingefasst werden.


Auf der halböffentlichen Platzfläche Ecke Niederkasseler Straße/Kanalstraße soll die Einfassung des Baumbeetes der bestehenden Zeder aus Sichtbeton hergestellt werden, welche gleichzeitig als zentrale Sitzgelegenheit auf dem Stadtplatz fungiert. An der nördlichen Platzgrenze soll außerdem das ehemals auf dem Kirchhof befindliche Ehrenmal der Kriegstoten in restaurierter Form seinen neuen Standort finden.


Einige der Mietergärten erhalten eine Abtrennung durch Heckenpflanzungen, für andere sind mit Kletterpflanzen begrünte Sichtschutzelemente geplant. Von der gesamten Außenanlagenfläche sind im aktuellen Planungstand etwa 2.150 qm als Grünfläche ausgebildet. Diese liegen weitestgehend als Zier- und Nutzgärten oder Spielflächen vor, welche sich ihrerseits aus Rasenflächen, sowie mit Stauden, Bodendeckern, Gräsern und Gehölzen bepflanzten Vegetationsflächen zusammensetzen.


Zur zusätzlichen Begrünung des Quartiers sind gemäß Freiraumplanung in ausgewählten Bereichen bodengebundene Fassadenbegrünungen geplant. Als zusätzliche Begrünungsmaßnahme sind auf den leicht geneigten Dächern der beiden zweigeschossigen Gebäude 3 und 5 extensive Dachbegrünungen vorgesehen.

projektdaten

AUFTRAGGEBER: Absolut Projektentwicklung GmbH, Zukunft St. Anna PROJEKT GmbH & Co. KG, Köln
ARCHITEKTEN: RTKB – Rosiny Trint Kreuder Breithack Architekten PartGmbB, Bergisch-Gladbach
BEARBEITUNGSFLÄCHE:
7.076 qm

ähnliche projekte