Info ausblenden
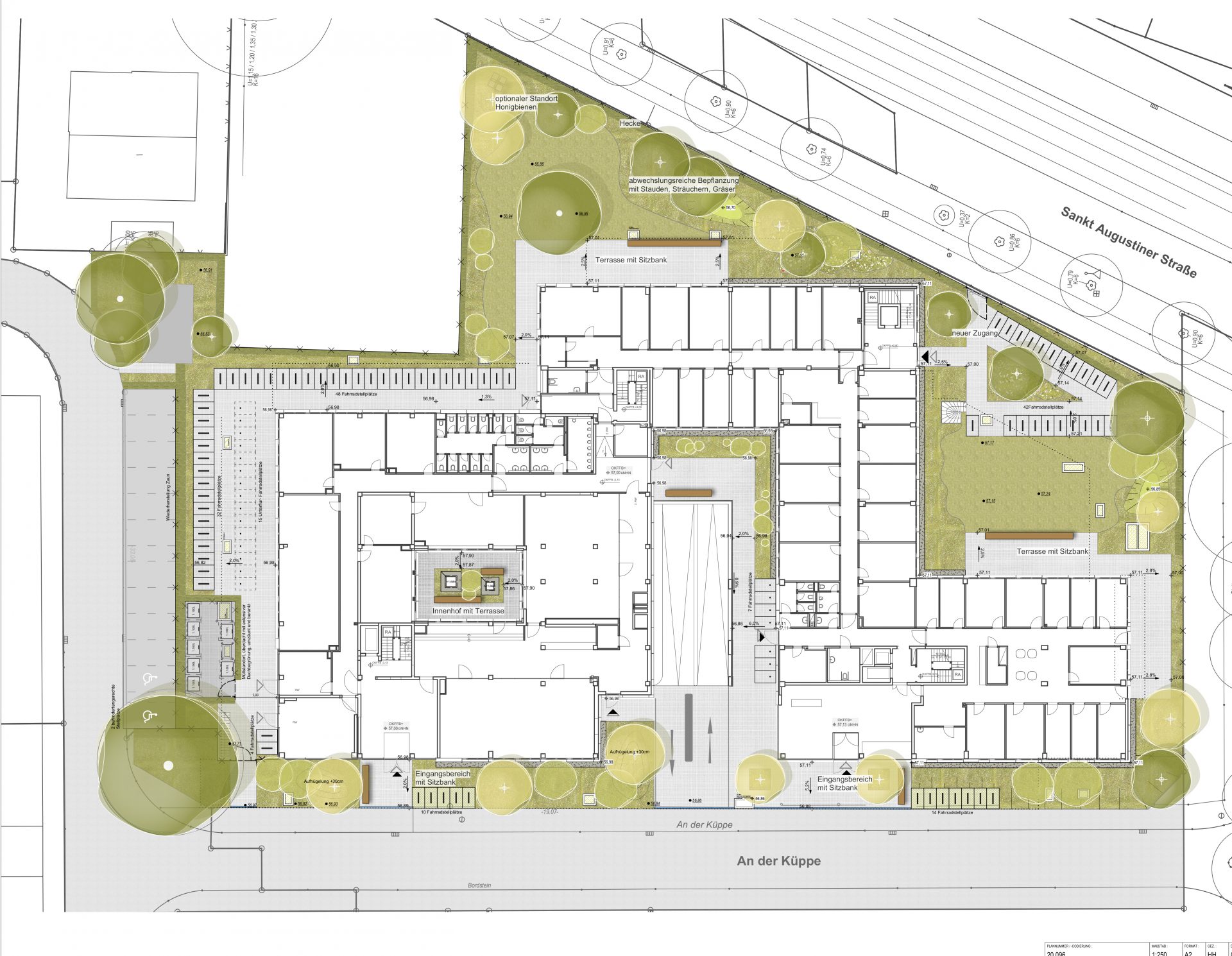
Die Außenanlagen des revitalisierten Bürogebäudes werden barrierefreundlich mit hoher Aufenthaltsqualität für die Mitarbeitenden geplant. Durch die Ausrichtung des Gebäudes werden zwei Terrassen zum Aufenthalt am hinteren Gebäudeteil vorgesehen sowie eine ausreichend großer Bereich als Fahrradparkplatz.
Die Pkw-Parkplätze inkl. zwei behindertengerechter Stellplätze am Platanenweg werden auf 12 erweitert und in die Erneuerung mit einbezogen. 180 Fahrradstellplätze werden oberirdisch an zwei Stellen des Gebäudes in nächster Nähe zu den Gebäudeeingängen angeordnet. Diese sind jeweils am Eingang durch ein Tor von der Öffentlichkeit abgetrennt.
An der Fassadenseite des Gebäudes sowie rings um das Grundstück ist eine große Vegetationsfläche vorgesehen, bestehend aus an die Terassen anschließenden Rasenflächen und abwechslungsreichen Staudenpflanzungen in Richtung der Grundstückgrenze.
Bis auf die der Fassaden zugewandte Seite ist das Grundstück durch den wiederhergestellten Zaun und eine Hecke umschlossen. Neben den Bestandsbäumen werden um das Plangebiet weitere 19 Bäume. Die Wahl der Bäume beläuft sich hier auf standortgerechte Arten, wie Liquidambar styraciflua (Amberbaum) oder Gleditsia triacanthos (Lederhülsenbaum). In den innenliegenden Höfen und entlang der Straße „An der Küppe“ werden Pflanzflächen vorgesehen, die mit großwachsenden Strauchpflanzungen, wie Amelanchier lamarckii (Felsenbirne) oder Parrotia persica (Eisenbaum) aufgewertet werden. Die Aufenthaltsbereiche wie Innenhof, Terrasse und die großzügigen Eingangsbereiche werden mit Sitzbänken in Betonfertigbauweise mit Holzauflagen bestückt.
AUFTRAGGEBER: Landmarken AG
PLANUNGSZEIT: ab 2020
BAUZEIT: 2022
BEARBEITUNGSFLÄCHE: ca. 2.750 m²
GESAMTKOSTEN: 400.000 EUR
UNSERE LEISTUNGEN: LPh 1 – 8



