Konzept Butzweiler Hof
Konzept Butzweiler Hof

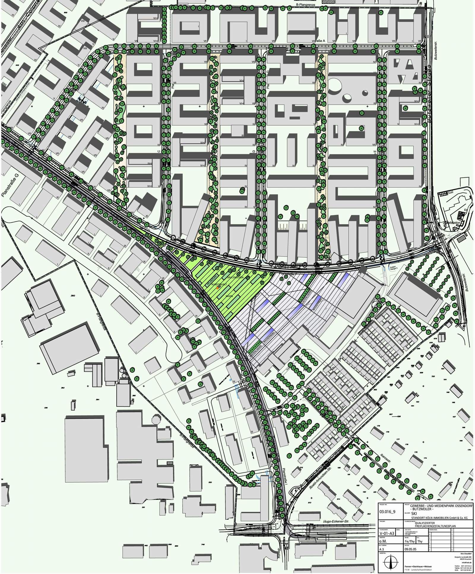
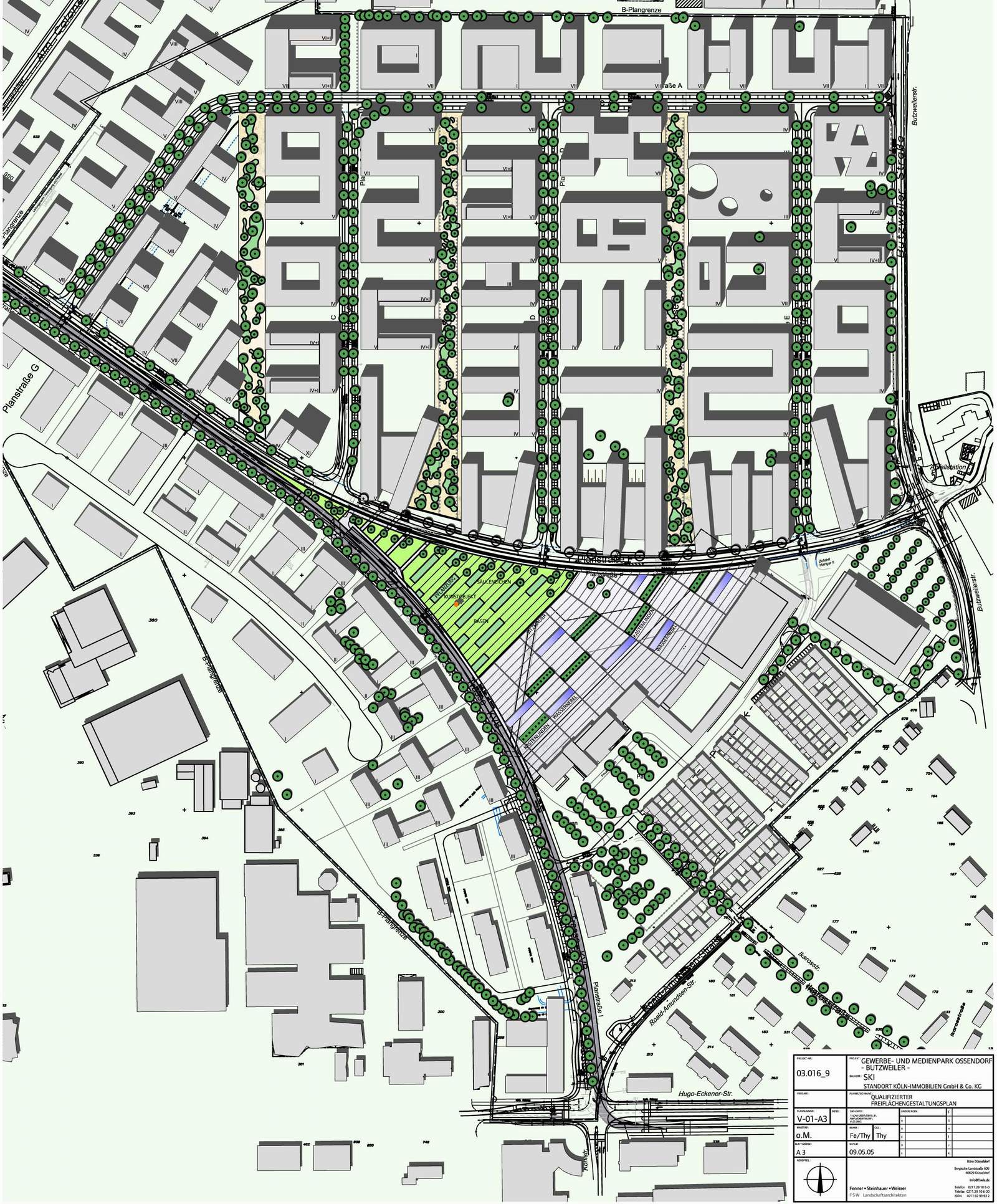
Zukunft am Butzweilerhof

Die künftige städtebauliche Entwicklung der Konversionsfläche, die als Nutzung überwiegend büro- und dienstleistungsorientiertes Gewerbe und Wohnen unter Erhalt und Einbindung der unter Denkmalschutz stehenden Gebäude und Flächen vorsieht, orientiert sich an dem Entwurf von Goerdt + Schwarz als Siegerin des städtebaulichen Wettbewerbs (2003).

Kernstück und neues Zentrum ist eine großzügige zentrale Platzfläche, die im Anschluss vor den denkmalgeschützten Empfangs-, Nebengebäuden und dem Tower des ehemaligen Flughafens entstehen soll und dabei Bestandteile des ehemaligen Rollfeldes integriert.

Zwei Erschließungsbögen bestimmen die Platzkanten: gebaute Raumkanten im Norden, eng gestellte Baumreihen im Süden. Die Freiraumstrukturen werden durch lineare von Norden auf den Platz zulaufende Grünachsen ergänzt und fortgeführt.

Die stadtgestalterische Planungsidee wird durch den Bebauungsplan aufgegriffen, den wir mit UVP und LBP bis zur Planreife begleitet haben. Parallel hierzu werden in Anlehnung an die Rahmenplanung städtebauliche und freiraumplanerische Fragestellungen weiter vertieft.

projektdaten

AUFTRAGGEBER: SKI Standort Köln-Immobilien GmbH & Co. KG
PLANUNGSPARTNER: ESSER Architekten; IPL Consult; Lichtplanung Hartung
PLANUNGSZEIT: 2003 – 2006
BEARBEITUNGSFLÄCHE: 53 ha
UNSERE LEISTUNGEN: Vorbereitung städtebaulicher Wettbewerb, Rahmenplan, UVP und LBP

ähnliche projekte