wettbewerb Neugestaltung Ortsmitte Hünxe
Anerkennung
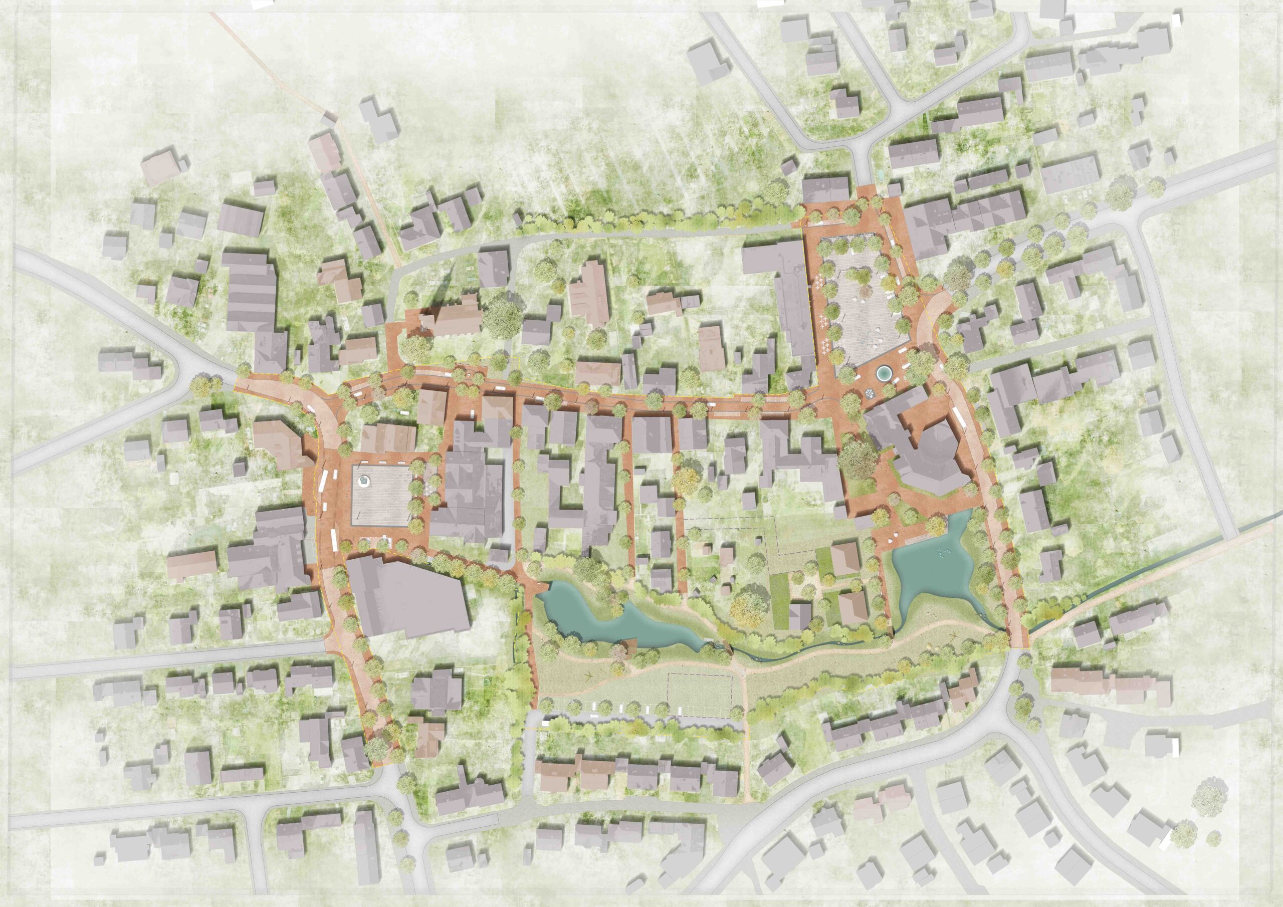
Die Ortsmitte von Hünxe bekommt ein neues Gesicht. Die neue Gestaltung umfasst den Bereich des Rathausplatzes, das Umfeld der Dorstener Straße, sowie den Hünxer Bach bis hin zum Marktplatz an der Alten Dinslakener Straße. Das Ziel besteht darin die Ortsmitte neu zu beleben und die vorhandenen Strukturen aufzuwerten.
Unser Entwurf verknüpft die einzelnen Bereiche sehr gut miteinander und umfasst die Areale mit einem großzügigen Freiraumkonzept zur variablen Nutzbarkeit.
Die neue Gestaltung bringt eine Veränderung des Bestehenden mit sich und hat dementsprechend eine Weiterentwicklung des Stadtbildes zur Folge. Für die Qualität des städtischen Freiraums ist ein ruhiger, „aufgeräumter“ Straßenraum und eine klare Strukturierung der Flächen entscheidend. Das Konzept wird durch den shared space an den öffentlichen Flächen am Rathausplatz und am Marktplatz gestärkt. Diese Bereiche werden als ein Raum betrachtet.
Die Aufenthaltsqualität wird gestärkt, indem zentrale Anlaufpunkte geschaffen werden, welche zum Verweilen einladen. Zudem gibt es im gesamten Gebiet Aufenthalts- und Treffpunkte. Ein wichtiges Thema ist dabei auch die barrierefreie Anbindung innerhalb der Ortsmitte, genauso wie die uneingeschränkte Nutzbarkeit der einzelnen Flächen.
Gestärkt wir die neue Ortsmitte von Hünxe insbesondere durch den neu entstehenden Stadtpark im Bereich des Hünxer Baches. Von hier aus wird eine Grünstruktur durch das gesamte Gebiet gezogen. Eine Maßnahme, die sich auch auf die steigenden Temperaturen in besiedelten Räumen, gerade an heißen Sommertagen, positiv auswirkt.
Das bestehende Wegenetz in der Ortsmitte wird insbesondere durch die Aufwertung der Verbindungsgassen von Nord nach Süd gestärkt. Die Gassen werden begrünt und dadurch optisch aufgewertet. Entlang des Rathauses wird zusätzlich eine neue Verbindung geschaffen. Der motorisierte Verkehr wird überwiegend außen um die Ortsmitte herum geführt und dadurch das Zentrum für Fußgänger und Radfahrer gestärkt.
daten
Jahr: 2020
ähnliche Wettbewerbe
2025
Neue Ortsmitte Ottendorf-Okrilla
1. preis
Studio GrünGrau DüsseldorfStudio GrünGrau Dresden
Rathaus Stolberg
Anerkennung
Studio GrünGrau Düsseldorf
2024
August-Bebel-Platz und Weseler Straße Duisburg-Marxloh
3. Preis
Studio GrünGrau Düsseldorf
Neue Perspektiven für Lörick
3. Preis
Studio GrünGrau Düsseldorf